Die barrierefreie und sehr hochwertige Wohnung befindet sich in einem Mehrfamilienhaus mit Aufzug (insgesamt 4 Parteien) in einer ruhigen und zentralen Wohnsiedlung in Krumbach in unmittelbarer Nähe zur Kreisklinik.
Der Neubau des MFH erfolgte Mitte 2017. Die ursprünglich getrennten Wohnungen 1 und 3 wurden zu einer Einheit zusammengefasst.
Es handelt sich um eine Erdgeschoss- und 1. Obergeschosswohnung mit 220 qm Wohnfläche und großer überdachter Terrasse. Außerdem hat die Wohnung einen kleinen eigenen Garten, eine Doppelgarage und einen absperrbaren Abstellraum im Keller.
Die drei Geschosse sind mit einer Wendeltreppe verbunden und können von außen mit dem Aufzug barrierefrei erreicht werden. Alle Räume sind mit Echtholzparkett und einer Fußbodenheizung ausgestattet.
Die komplette Wohnung verfügt über ein kabelgebundenes Hausnetzwerk, welches in jedem Raum mit einem separaten LAN-Ausgang verfügbar ist. Außerdem ist eine dezentrale Lüftung vorhanden. In allen Räumen sind bereits LED-Deckenspots verbaut. Das Treppenhaus hat LED-Wandstripes als Beleuchtung.
Außerdem sind die drei Bäder bereits mit Spiegeln und Badmöbeln ausgestattet. Die hochwertige Mieleküche (Dampfgarer/Mikrowelle, Backofen, Induktionsherdfeld, Kühlschrank, Spülmaschine) hat eine Garantieverlängerung der Elektrogeräte bis 2027 und ist im Mietpreise inkludiert. Im UG befindet sich eine Klafs-Sauna.
Die Ankleide und der HWR sind mit Einbauschränken ausgestattet. Beim Ausbau der Einbauschränke der Ankleide (und Einbau z.B. im Schlafzimmer) könnte dieser Raum als weiterer Schlafraum benutzt werden.
In sehr ruhiger und dennoch zentrumsnaher Wohnlage im Süden von Krumbach.
Sehr angenehme Wohngegend mit guter Nachbarschaft.
Krumbach mit seinen ca. 12.500 Einwohnern ist ein einladendes Städtchen im südlichen Landkreis Günzburg und bietet alles für den täglichen Bedarf.
Am Ort befinden sich Grund- u. Hauptschule, Realschule und Gymnasium sowie alle Ärzte, viele kleine Geschäfte und viele Supermärkte, sowie Freibad und Hallenbad.
In netten Kaffees und guten Restaurants lässt sich das Leben genießen.
Die hügelige Voralpenlandschaft und direkt an die Stadt angrenzende Fluren und Wälder laden zu herrlichen Spaziergängen und Radtouren im Sommer und zum Langlauf im Winter ein.
Krumbach liegt im Kreuzungspunkt der Bundesstraßen B 300 (Augsburg- Memmingen) und B 16 (Günzburg – Mindelheim). Ulm ist 30 Fahr-Minuten entfernt.
Den nächsten Autobahnanschluß zur A 7 Ulm- Kempten (Anschlussstelle Illertissen) erreicht man in ca.15 Minuten, den Anschluß zur A 8 München- Stuttgart in 25 Minuten.
Krumbach hat Bahnanschluß und stündlich verkehren tagsüber Züge nach Günzburg und Mindelheim.
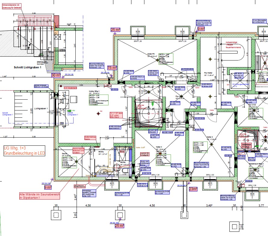
Räume UG:
• Bad mit Dusche/WC (ca. 6 qm)
• Sauna (ca. 6 qm)
• Hobbyraum/weiteres Kinderzimmer mit großem Lichthof (ca. 25 qm)
• Abstellraum (ca. 16 qm)
Räume EG:
• Diele/Eingangsbereich (ca. 7 qm)
• Wohn-/Ess-/Küchenbereich mit Einbau-Küche (ca. 54 qm)
• Büro/Kinderzimmer (ca. 19 qm)
• Gäste-WC (ca. 2 qm)
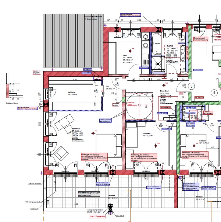
Räume 1.OG:
• Bad mit WC/Dusche/Badewanne (ca. 9 qm)
• Abstellraum/HWR mit Waschmaschinenanschluss (ca. 10 qm)
• Kinderzimmer (ca. 14 qm)
• Schlafzimmer (ca. 25 qm)
• Ankleide (ca. 10 qm)
• Diele/Eingangsbereich (ca. 10 qm)
Breitband/TV:
• Telekom (bis zu 175Mbit/40Mbit)
• Vodafone (bis zu 1000MBit/50Mbit)
• Glasfaseranschluss seitens der Telekom ab 2024 möglich
> Eine Haustierhaltung wird vom Vermieter nicht gewünscht!
- Angaben zum Energieausweis:
Art: Bedarfsausweis
Baujahr Gebäude: 2017
Baujahr Heizungsanlage: 2017
Ausgestellt am 07.12.2017 - Gültig bis: 06.12.2027
Endenergiebedarf: 58 kWh/(m²*a)
Primärenergiebedarf: 22 kWh/(m²*a)
Energieeff.kl.: B
Wesentlicher Energieträger: Pellets
Für weitere Information und zur Vereinbarung eines Besichtigungstermins erwarten wir gerne Ihren Anruf.


